西溪玫瑰園裝修案例設計理念:積厚成器,木以載道。空間,因家居的存在而不在寂寥,在傳統文化上,家居的繁生總是與家有著極其緊密的關系,一處空間,之所以能具有家的生活意味,是由于坐臥,憑依,書藏,間隔,喜好,等功能之中衍生,人之所以得以在此修養安息。

餐廳
生活當然也要則良品伴居,正是兩者之間形影相隨,為空間設計與美式家具藝術搭配建立一個生活起居的理想家園。

客廳

臥室

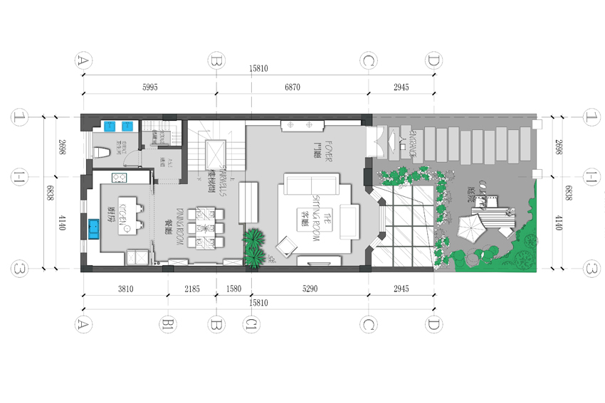
一樓平面圖

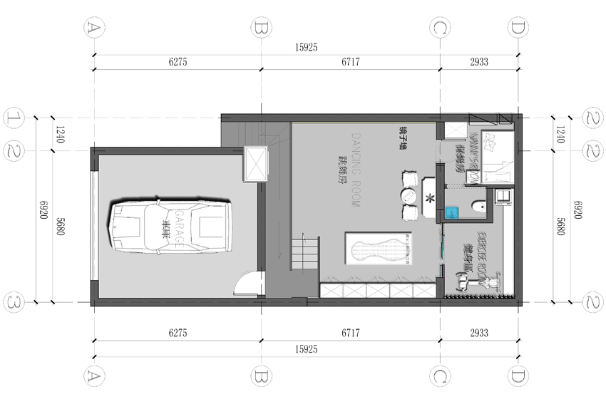
地下室平面圖

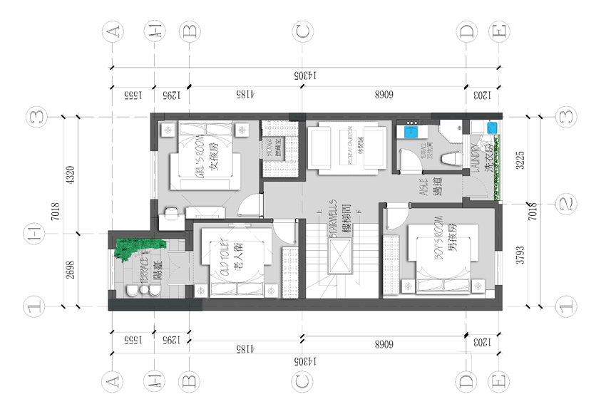
二樓平面圖

四樓平面圖

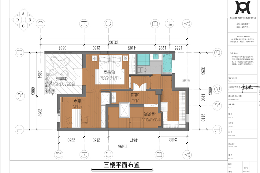
三樓平面圖

戶型:別墅
風格:簡美式
面積:200㎡-500㎡
城市:杭州
西溪玫瑰園裝修案例設計理念:積厚成器,木以載道。空間,因家居的存在而不在寂寥,在傳統文化上,家居的繁生總是與家有著極其緊密的關系,一處空間,之所以能具有家的生活意味,是由于坐臥,憑依,書藏,間隔,喜好,等功能之中衍生,人之所以得以在此修養安息。

餐廳
生活當然也要則良品伴居,正是兩者之間形影相隨,為空間設計與美式家具藝術搭配建立一個生活起居的理想家園。

客廳

臥室

一樓平面圖

地下室平面圖

二樓平面圖

四樓平面圖

三樓平面圖