康城國際裝修案例設計說明:想必很多人都應該知道,美國是一個非常崇尚民主自由的國家,所以,很多美式風格給人的感覺也是非常灑脫的,近年來,簡美的裝修風格就受到了很多人的喜愛。

臥室
此案硬裝簡潔明快,通過軟裝的點綴讓整個空間洋溢著春天的氣息。設計師把原來兩房的空間打通,打造成開放式的廚房和客廳,廚房是比較西式的,中間的大理石島臺也是業(yè)主非常喜歡的設計。

局部一角

客餐廳

局部裝飾

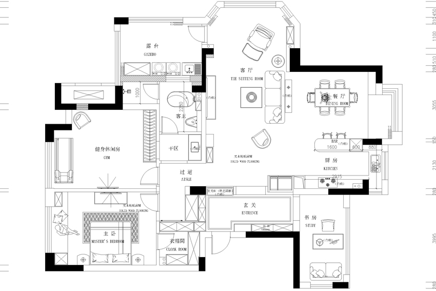
康城國際戶型圖

戶型:三居室
風格:簡美式
面積:120㎡-200㎡
城市:杭州
康城國際裝修案例設計說明:想必很多人都應該知道,美國是一個非常崇尚民主自由的國家,所以,很多美式風格給人的感覺也是非常灑脫的,近年來,簡美的裝修風格就受到了很多人的喜愛。

臥室
此案硬裝簡潔明快,通過軟裝的點綴讓整個空間洋溢著春天的氣息。設計師把原來兩房的空間打通,打造成開放式的廚房和客廳,廚房是比較西式的,中間的大理石島臺也是業(yè)主非常喜歡的設計。

局部一角

客餐廳

局部裝飾

康城國際戶型圖
毛曉樺 從業(yè):16年朱亞 從業(yè):7年沈橋 從業(yè):18年沙龍 從業(yè):7年嚴峻 從業(yè):15年李丹 從業(yè):10年李江 從業(yè):10年王雁 從業(yè):13年湯磊 從業(yè):10年郭沆潔 從業(yè):10年