萬科君望裝修案例設計說明:整體設計遵循別院生活的文化內涵,以當代手法敘說傳統東方美學,將源于自然的雅致藝境凝結于空間,賦予居者美好人居體驗的同時,喚醒其對理想生活的無限想象。

萬科君望別墅庭院裝修實景圖
清幽雅致的整體設色、肆意伸展的嫩綠植物、古樸優雅的飾品擺件......傳統與當代在空間詩意交織,呈現出一種清雅況味。

萬科君望別墅客廳裝修實景圖
陽光透過輕紗,從庭院外灑滿整個客廳。質感細膩的真絲硬包,搭配地面宛若水波般機理延綿的大理石,以及氣質清傲的啞光質感染色橡木,一幅融合了現代皴法的寫意山水,在客廳悄然渲染而開。

萬科君望別墅客廳裝修實景圖
置身其間,悠然畫上,時而獨自清凈,時而天倫之樂。落地窗外,庭景依舊,四季螺旋更迭。

萬科君望別墅客廳裝修實景圖

萬科君望別墅樓梯裝修實景圖
挑高的空間利用吊燈的造型來增加空間變化,給予空間延伸感。

萬科君望別墅餐廳裝修實景圖
餐廳:鐵藝隔斷與藝術玻璃屏風,素雅的真絲墻布,在空間營造出剛柔對比之美。

萬科君望別墅餐廳裝修實景圖
重構的符號和穩重的色彩,不同材質的碰撞,無形之中將東方意境娓娓道來。

萬科君望別墅廚房裝修實景圖

萬科君望別墅衛生間裝修實景圖

萬科君望別墅臥室裝修實景圖
淺灰色色系的硬裝空間基調,搭配東方氣質的家具組合,流露出寫意之美,簡雅而素淡,給人帶來一種寧靜雅致的視覺感受。

萬科君望別墅臥室裝修實景圖
主臥套房獨占一層,寬敞的臥室與衛浴間、步入式的衣帽間以及梳妝區,打造主人房禮序與尊貴并具的生活儀式。

萬科君望別墅臥室裝修實景圖
墨綠色與水墨灰糅合、木制與硬包搭配、棉麻與絲綢互映……空間所用的材質均顯露著典雅的質感,現代簡約形制與東方意蘊無縫融合,營造沉穩高雅的居室氛圍。

萬科君望別墅衣帽間裝修實景圖

萬科君望別墅茶室裝修實景圖
茶室:門外是人間煙火,門內是閑逸雅致。一方茶席二三茶具,寧靜致遠,燃一線香沏一壺茶,不經意間刻畫出最極致的東方生活美學。

萬科君望別墅生活廳裝修實景圖

萬科君望別墅負一層平面布置圖

萬科君望別墅一層平面布置圖

萬科君望別墅二層平面布置圖

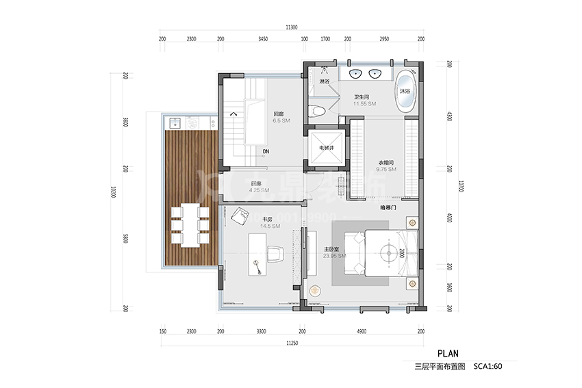
萬科君望別墅三層平面布置圖
結束語:物之美,景之美,造雅致之境,營造含蓄溫婉的詩意空間。在這充滿靈氣的維度里,散發著舒適居家之感,居者仿佛在時間里游走,心靈上得到歇息。

全國
錦繡江南裝修案例
明桂北苑裝修案例
文鼎苑裝修案例
興議家園裝修案例
運河東苑裝修案例
前灘名邸裝修案例
廣宇鼎悅府裝修案例
云裳公寓裝修案例
唐家景府裝修案例
錢江五苑裝修案例
貝利棲溪府裝修案例
風雅錢塘裝修案例
畈里張公寓裝修案例
毛曉樺裝修案例
德勝新村裝修案例
上尚庭裝修案例
菊香苑裝修案例
卓越蔚藍領秀裝修案例
三堡家園裝修案例
現代雅苑裝修案例
大園新城裝修案例
中天珺府裝修案例
花澗堂別墅裝修案例
華清山莊裝修案例
君臨天下裝修案例
翠苑四區裝修案例
西溪印象裝修案例
景上公寓裝修案例
紅郡別墅裝修案例
柳岸春風別墅裝修案例
金茂悅裝修案例
陽光郡裝修案例
金蘭軒裝修案例
華光路裝修案例
白馬山莊裝修案例
東河錦園裝修案例1
德清千秋名苑裝修案例
德信大家時代公館裝修案例
蕭山綠茵園裝修案例
江南新港裝修案例
中海寰宇天下裝修案例
紫金庭園秋雪苑裝修案例
東河錦園裝修案例
瑞金華庭嘉苑裝修案例
九洲芳園裝修案例
綠城蓮園御蓮軒別墅裝修案例
龍井村自建房裝修案例
盛世錢塘裝修案例
江南豪園裝修案例
悅江閣裝修案例
府苑新村裝修案例
竹海水韻蜜糖裝修案例
云樹村別墅裝修案例
香港興業耦園裝修案例
萬家花城裝修案例
軟裝裝修案例
德信早城裝修案例
遠洋心里裝修案例
御景藍灣裝修案例
麗水獨立別墅裝修案例
華元花澗堂別墅裝修案例
康城一品裝修案例
桐鄉軟裝裝修案例
紅五月嘉苑裝修案例
天城府裝修案例
眾安白馬御府裝修案例
錢江一苑裝修案例
東海閑湖城裝修案例
瑞麗東方花城裝修案例
丁橋家苑裝修案例
龍湖春江天璽裝修案例
青春都市公寓裝修案例
越秀前灘名邸裝修案例
良渚勸學里裝修案例
江南之星裝修案例
清水灣別墅裝修案例
梅花三勝裝修案例
昆侖府別墅裝修案例
錦繡文瀾閣裝修案例
龍庭一品熙園別墅裝修案例
江南之星裝修案例
泰和花園裝修案例
水榭春天裝修案例
闊石板裝修案例
六合天寓裝修案例
永信首府裝修案例
越秀星匯城東區裝修案例
越秀星匯城3期裝修案例
合景印月臺裝修案例
三江名苑裝修案例
新州花苑裝修案例
檸檬郡裝修案例
開元名城領峰府裝修案例
東海閑湖城裝修案例
府苑新村裝修案例
艮山府裝修案例
傾城之戀裝修案例
唐家景府裝修案例1
龍湖春江天璽裝修案例
唐家景府裝修案例
復地連城裝修案例
錢江一苑裝修案例
芳洲苑裝修案例
東方福邸裝修案例
新風悅居裝修案例
湘湖美地裝修案例
湘湖南苑裝修案例
大華海派裝修案例
庭院深深裝修案例
景芳四區裝修案例
梧桐苑裝修效果圖
鎖瀾坊裝修效果圖
招商武林郡裝修案例
源峰嘉園裝修案例
錢塘新語裝修案例
東方海岸裝修案例
江南之星裝修案例
保利東灣裝修案例
中鐵逸都裝修案例
駱家莊裝修案例
多藍水岸裝修案例
陽光城上府裝修案例
爵士風情韻境苑裝修案例
復城國際裝修案例
紫園裝修效果圖
五坊園裝修效果圖02
五坊園裝修效果圖01
錢塘御景裝修案例
三里新城蘭苑裝修案例
盛世錢塘裝修案例
新城香悅半島裝修案例
伊薩卡浩澤園裝修案例
西湖國際城裝修案例
云河西園裝修案例
玉屏藍灣裝修案例
錦秀蘭亭裝修案例
茍莊裝修案例
中鐵逸都二期裝修案例
新山水御園裝修效果圖
清華園裝修案例
寶嘉御府裝修案例
花園府裝修案例
西溪璞園別墅裝修案例
康城一品裝修案例
御景藍灣裝修案例
錦繡蘭庭裝修案例
香蘭名苑裝修案例
東方御府裝修案例
英特學府裝修案例
云龍公寓裝修案例
東海水景城裝修案例
溫馨人家裝修案例
中港羅蘭小鎮裝修案例
翡翠城裝修案例
武林九里裝修案例
元福里別墅裝修案例
江南一號別墅裝修案例
水景西苑裝修案例
越秀·星匯尚城裝修案例
悅西臺裝修案例
學院府裝修案例
璽之灣裝修案例
首開望宸裝修案例
寶嘉譽峰裝修案例
花園府軟裝裝飾案例
西溪里珺園裝修案例
萬家花園裝修案例
藍庭小日子裝修案例
贊成檀府裝修案例
之江九里裝修案例
康都紫軒裝修案例
西溪名園別墅裝修案例
和諧家園裝修案例
三衛家園北裝修案例
德信東城裝修案例
同協雅苑裝修案例
君望三期裝修效果圖
國悅府裝修案例
順發恒園裝修案例
金祝新村裝修案例
城市風景裝修案例
融城印象裝修案例
三衛南苑裝修案例
伊薩卡國際城別墅裝修案例
花園府裝修效果圖
贊成首府裝修案例
富春山居別墅裝修案例
美哉美城裝修案例
水湘西苑裝修案例
宋都陽光國際裝修案例
融信藍孔雀裝修案例
雍景山裝修效果圖
杭州公館裝修案例
白馬山莊排屋裝修案例
蕭山獨立別墅裝修案例
雍華府裝修案例
郁金香岸裝修案例
金域東方裝修案例
富春山居悠遠居裝修案例
十二橡樹美筑裝修案例
江南一號裝修案例
之江城品裝修案例
親親家園裝修案例
郡望府裝修案例
水景城裝修案例
德信浙旅東宸裝修案例
陽光郡裝修案例
德信東宸裝修案例
寶嘉譽峰裝修案例
聯合.畔上居裝修案例
東方海岸裝修案例
曉苑裝修案例
美好桂花星城裝修案例
申花壹號院裝修案例
大成名座裝修案例
開元廣場裝修案例
東方海岸裝修案例
寶嘉譽峰裝修案例
翡翠城菩提苑裝修案例
柏林春天裝修案例
東海閑湖城裝修案例
桐鄉旅游廣場裝修案例
昌運里裝修案例
麗晶國際裝修案例
春江酈城裝修案例
都景公寓裝修案例
獨棟小別墅裝修案例
泊林春天裝修案例
柏林印象裝修案例
理想康城一品裝修案例
耀江文鼎苑裝修案例
新豐苑裝修案例
之江誠品1裝修案例
天陽云筑裝修效果圖
天巒苑裝修效果圖
白鷺郡北裝修效果圖
北海公園裝修案例
都市水鄉裝修案例
之江家園裝修案例
天陽上河裝修案例
黃龍金茂悅裝修案例
旺角城裝修案例
艮山府裝修案例
之江家園裝修案例
春江花月裝修案例
金都華府裝修案例
寧東北苑裝修案例
德勝東苑裝修案例
江南美農裝修效果圖
都市水鄉裝修效果圖
春江酈城裝修效果圖
中海提香裝修效果圖
翰林世家裝修案例
北辰奧園裝修案例
東方海岸裝修案例
順發旺角城裝修案例
中海寰宇天下裝修案例
高運高莊裝修案例
嘉里楓華居裝修案例
東方海岸裝修案例
無錫時代上河裝修案例
桃花源裝修效果圖
龍湖·武林九里裝修案例
黃麗設計師獲得獎章
多藍水岸裝修案例
同協雅苑裝修效果圖
綠尚春江城堡裝修案例
星海云庭裝修案例
中糧大悅城裝修案例
觀瀾時代裝修案例
九龍山莊裝修案例
春江花月曉風苑裝修案例
東方御府裝修案例
錢源江名門世家裝修案例
古蕩新村東裝修案例
名門世家裝修案例
風雅樂府裝修案例1
三塘蘭園裝修案例
玉蘭花園裝修案例
寰宇天下裝修案例
天福花園裝修案例
盛德博澳城裝修案例
悅麒美寓裝修案例
凱旋門裝修案例
之江誠品2裝修案例
宋都晨光國際裝修案例
東海閑湖城裝修案例
佳境天城裝修案例
錢塘白石嘉苑裝修案例
中外公寓裝修案例
江辰東望裝修案例
保集藍郡裝修案例
環山自建別墅裝修案例
蕭山名門世家裝修案例
頤景園裝修效果圖
個人裝修案例3
個人裝修案例4
地中海裝修案例
個人裝修案例2
陽光花園
金都夏宮
秘色軒酒店裝修效果圖
多思學校裝修效果圖
九如府別墅裝修案例
海名雅園別墅裝修效果圖
中交悅西溪疊排裝修效果圖
武林九里裝修效果圖
秋水苑裝修效果圖
錢江御府裝修效果圖
千島湖自建房裝修效果圖
蒙卡岸裝修效果圖
龍湖明景臺排屋裝修效果圖
浪漫河山裝修效果圖
金色蘭庭裝修效果圖2
金色蘭庭裝修效果圖1
金地自在城裝修效果圖
江濱花園裝修效果圖
海上海裝修效果圖
村口花園裝修效果圖
城市芯宇裝修效果圖
雍容華庭裝修效果圖
香悅半島裝修效果圖
婺江家園裝修效果圖
武林九里裝修效果圖
上塘宸章裝修效果圖
山水國際裝修效果圖
瑞立中央花城裝修效果圖
前灘名邸裝修效果圖
明珠花園裝修效果圖
金色江南裝修效果圖
大家之江悅裝修效果圖
新中式風格裝修效果圖
疊排裝修效果圖
新華園裝修效果圖
金色黎明裝修效果圖
東景苑別墅樣板房
星悅灣裝修效果圖
義烏樣板房裝修案例
帝景天譽裝修案例
頤和南苑裝修案例
中海桃源里裝修效果圖
上林湖別墅裝修效果圖
湖州別墅裝修案例
楓丹白露裝修案例
余杭徑山別墅樣板房
余杭瓶窯見南山假日酒店
余杭區開元曼居臻選酒店
良渚加利利國際英語
塘棲百年老字號糕點店
臺州海鮮館裝修效果圖
詮世傳動裝修效果圖
千島湖薩版納酒店
金成房產英特學府公共空間
江西婺源康源山莊
江蘇常州新月板業辦公樓
杭州三晶工藝塑料辦公樓
杭州濱江赤渡電商
杭州轉塘德力西集團
余杭鸕鳥董書記別墅
余杭塘棲金醫生疊墅
余杭瓶窯陳總別墅
余杭徑山金總別墅
余杭徑山高總別墅
余杭百丈林局自建房
臨平康城一品裝修效果圖
中海御道裝修效果圖
水景城裝修效果圖
諸暨裝修案例
紫荊莊園裝修效果圖
楊家門前裝修效果圖
溪上玫瑰園裝修效果圖
通和金橡臻園裝修效果圖
桃花源云樹村裝修效果圖
十里風荷荷園裝修效果圖
潤和西溪郡裝修效果圖
良渚花苑荀莊裝修效果圖40
良渚花苑荀莊裝修效果圖39
錦繡錢塘裝修效果圖
金地自在城裝修效果圖
華元美林公館裝修效果圖
華盛達·閱城公寓裝修效果圖
富陽自建房裝修效果圖
東海閑湖城裝修效果圖7
東海閑湖城裝修效果圖27棟
東海閑湖城裝修效果圖17幢
昌化自建房裝修效果圖
朱宅裝修效果圖
世紀天城裝修效果圖
深業濱江半島裝修效果圖
愛上花園裝修案例
伴山香檳園別墅裝修效果圖
香山郡裝修效果圖
旭日上城裝修效果圖
星河翠庭裝修效果圖
中海鳳凰熙岸裝修效果圖
保利羅蘭春天裝修效果圖
五礦瀾悅棲原裝修效果圖
萬達茂裝修效果圖
百家湖裝修效果圖
南京融僑觀邸裝修效果圖
南京帝豪花園裝修效果圖
柏悅府裝修效果圖
施家花園裝修案例
僑福逸品裝修案例
艮山府裝修效果圖
擎天半島裝修效果圖
學院府裝修效果圖
寶嘉譽峰裝修效果圖
錢江府裝修效果圖
錦文雅宛裝修效果圖
保利樓蘭香谷軟裝裝飾案例
美政美苑軟裝裝飾案例
博地辦公室裝修案例
萬利大廈裝修案例
之江誠品裝修效果圖
理想康城一品裝修效果圖
金隅觀瀾時代裝修效果圖
柏林印象裝修效果圖
保利東灣別墅2裝修效果圖
保利東灣別墅裝修效果圖
辦公室裝修效果圖
許越設計效果圖集
水印康庭裝修案例
萬家花城裝修案例
桐廬別墅裝修案例
西溪之星裝修案例
德圣銀杏匯裝修案例
御觀邸裝修案例
盛世錢塘裝修案例
顧文杰個人裝修效果圖
連城國際裝修案例
親親家園紫陽坊裝修案例
錢塘府裝修案例
理想銀泰裝修案例
學院北麓裝修案例
歐美金融城裝修案例
新昌玫瑰園裝修效果圖
下沙觀瀾時代裝修案例
御景藍灣裝修案例
龐凱健個人裝修案例
現代簡約風格裝修案例
簡美風格裝修案例
簡歐風格裝修案例
星月灣裝修效果圖
臨安淤淺裝修效果圖
保利江語海裝修效果圖
高曉丹個人裝修效果圖
戴駿個人裝修案例
陳艷芳個人裝修效果圖
城市風景裝修案例
青秀城裝修案例
錦繡江南裝修效果圖
金地天逸裝修效果圖
海威國際裝修效果圖
張佳波個人裝修效果圖
田園牧歌麓云苑裝修案例
柏林印象裝修案例
水景城裝修案例
桂花城裝修案例
贊成檀府裝修案例
康城國際裝修案例
郁金香岸裝修案例
陸海燕個人案例集
運新花園裝修效果圖
浪漫法式裝修案例
西溪玫瑰園裝修案例
個人集裝修案例6
賀田尚城裝修效果圖
玫瑰園裝修案例
個人集裝修效果圖
公望裝修案例
私人別墅裝修案例
紫縷苑
新城國際彩園
仁和大廈
西溪里
歐景璽園裝修效果圖
橄欖郡裝修效果圖
紫鳶堡裝修案例
義烏伊美小區裝修效果圖
天陽上河裝修案例
御江帝景
個人案例集
顧文杰個人案例