紳華府
| 案例風格 | 歐式 | 案例戶型 | 三居室 | 案例面積 | 180平方 |
| 樓盤名稱 | 紳華府 | 所在城市 | 浙江杭州 | 案例造價 | -- |
| 服務店面 | 九鼎裝飾 | 設計師 | 朱亞 | 施工隊長 |
設計說明:以歐州文化做延伸,利用現代的設計手法,進行了再次讀寫。歐式輕奢的生活裝飾融入主人的生活習性,將每個空間都作為生活
的享受。金屬色調的運用展示歐式文化的優雅,大膽的軟裝色彩點綴各個空間的同時也使空間更為靈動活躍。初入門廳,睡蓮入眼,幾縷清
新。迎面一幅金黃的森林的自然風景畫,怡然休閑,仿佛盡頭有無限的遐想……客廳,暖色的燈光,經典歐式的沙發 ,讓你仿佛置身在80年
代的歐洲貴族家庭,茶幾上飄著裊裊香氣的咖啡,還有泛黃的報紙、以及那個你愛的家人。與客廳對應的餐桌,此刻該是熱鬧的、喜慶的溫
馨的準備著圣誕的布置,準備著平安夜豐盛的晚餐…書房,沒有以往的嚴肅與古板,曲線柔和的書桌、 鉤花的花紋屏風映襯著歐式的復古藍
色的沙發,窗邊的小榻榻米又將休閑舒適帶入,累了可以坐躺休息。生活不只有匆忙,還有吃茶聊遠方~主臥, 背景墻的碎花壁紙映襯了歐
式的古典,同時有自帶小清晰屬性,溫馨又浪漫。窗邊的榻榻米,舒適浪漫,文藝氣息撲面而來。次臥,全部碎花的壁紙,溫馨浪漫,能給
孩子足夠的安全感,安然入睡。衛生間主要以簡潔為主,白色的主調,配以歐式的柜子。廚房,是用烹飪以及飲食來重塑你生活的地方,所
以需要明亮與通風性良好,其次簡單方便即可。

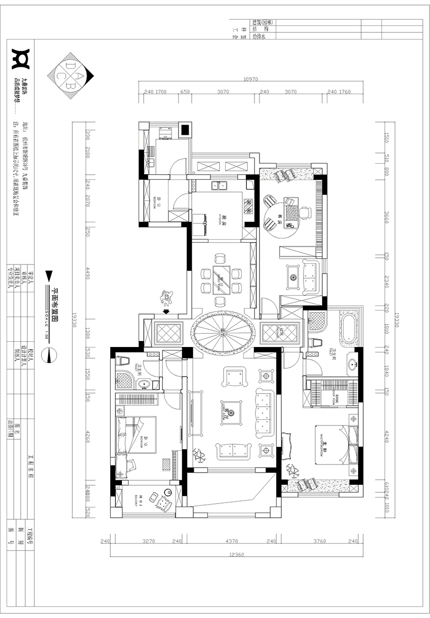
戶型圖

客廳

餐廳

廚房

主臥室

次臥

書房

衛生間
萊德紳華府尊處主城區申花板塊核心區域,南至豐登街,西至益樂路,承襲著城西固有的高尚情結,不僅與西溪濕地一衣帶水,更浸潤浙大
紫金港校區的一脈書香 項目總占地35805平方米地上總建筑面積約10萬平方米 援引新古典主義建筑美學 七幢高層樓宇星羅棋布90㎡-200㎡
典雅戶型匹配城市精英置業所需 。項目周邊交通便利 ,萍水路、豐潭路、莫干山路直達市區,更有地鐵2號線、5號線咫尺相伴. 浙大紫金港
校區 、祥符中心小學、保俶塔實驗學校環繞,營造濃郁的學院氛圍,更匯集沃爾瑪、銀泰百貨等大型商業配套,生活如紳士般從容優雅。
地址:拱墅區登云路617號 咨詢電話:400-001-9900







